WOHNHAUS C | NÜRNBERG
Im Nordosten Nürnbergs entsteht auf einem Grundstück am Waldrand ein Einfamilienhaus in Vollholzbauweise. Der Entwurf folgt einem klaren Prinzip: maximale Recyclingfähigkeit, gesunde Materialien und die Möglichkeit eines sortenreinen Rückbaus.
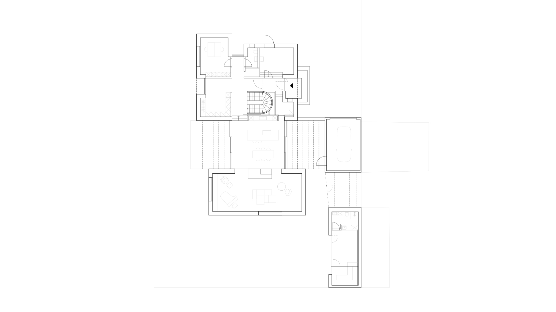
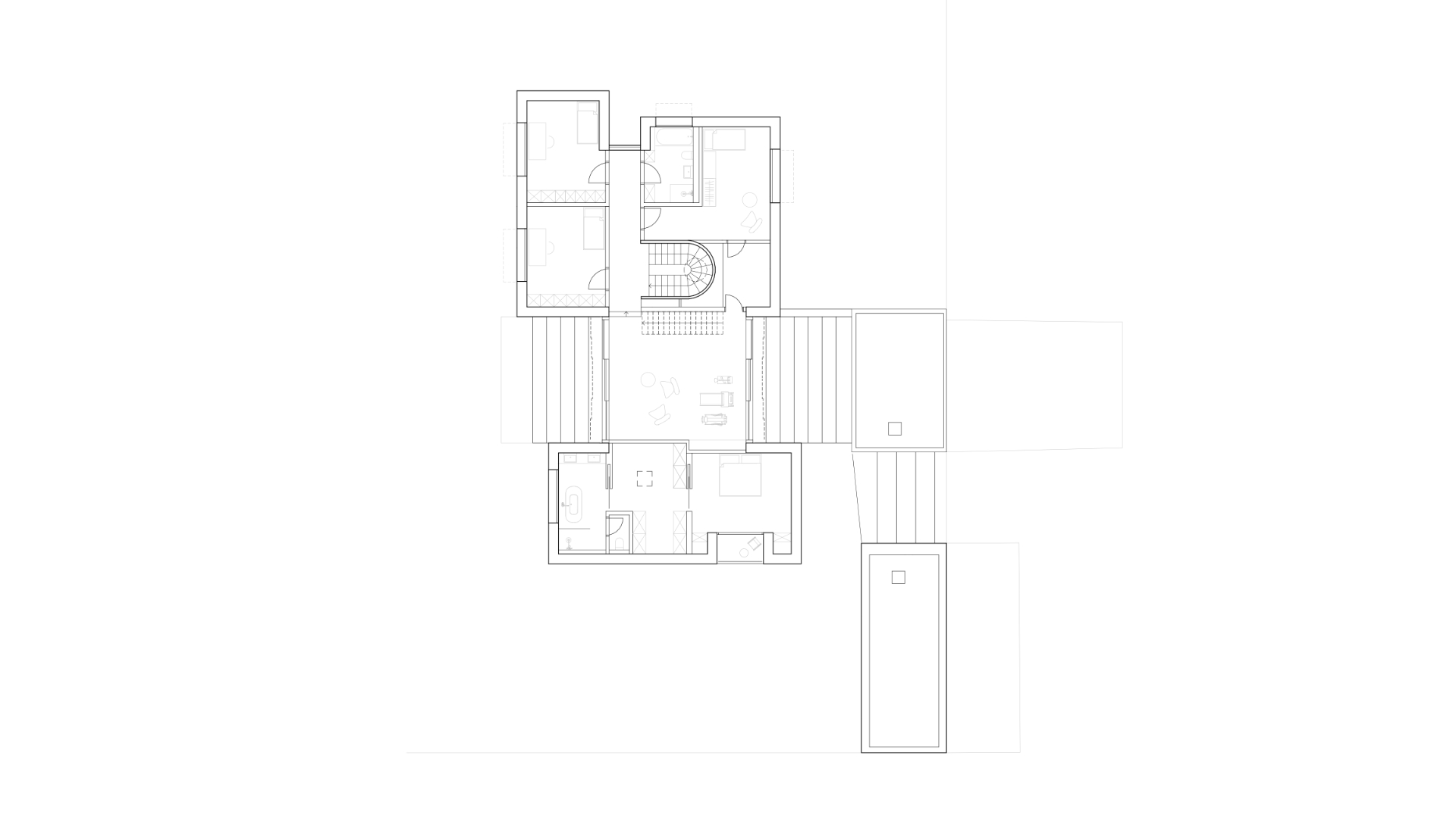
Um das relativ große Bauvolumen sensibel in die kleinteilige Umgebung einzubetten, wurde das Gebäude in drei kleinere Volumen aufgeteilt. Die 3 Baukörper sind so auf dem Grundstück platziert, dass dazwischen transparente Fugen entstehen. Diese verglasten Zwischenräume dienen als verbindende Bewegungszonen und stellen die Beziehung zur umgebenden Landschaft her.
Im Zentrum des Gebäudes entsteht auf beiden Etagen ein offener Raum mit weitem Blick nach außen. Große Glas-Schiebeelemente ermöglichen der Familie eine flexible Verbindung zwischen Innen- und Außenraum.
Das Gebäude besteht aus massivem, unbehandeltem Vollholz – komplett leimfrei – und wird statisch wo nötig durch Stahlträger und -stützen ergänzt. Statt auf klassische Gipskartonlösungen oder verklebte Konstruktionen zu setzen, kamen fast ausschließlich Lehmplatten und Lehmputz zum Einsatz. Auch im Bodenaufbau wurde bewusst auf Estrich verzichtet – Lehm schafft hier in Trockenbauweise eine alternative, rückbaufreundliche Lösung.
Typologie
Wohnen
Ort
Nürnberg
Jahr
2023 – 2026
Größe
–
Leistungsphasen
LPH 1 – 8
Status
Realisierung 2026
Bauherr
privat
Fotos
Ralf Dieter Bischoff





















Neueste Kommentare